Residential Building Design & Drafting
Clear, build-ready drawings that streamline approvals and construction.
Registered building designer
Renovations, extensions & new homes
Practical drawings aligned with real construction
Concise plans.
Transparent service.
Clear communication.
Welcome Builders, Developers, and Homeowners
Whether you’re building, developing, or thinking of a renovation or new build, I’m here to help.
From Concept to Permit
Clarity before you commit.
This stage focuses on understanding your site, brief, and constraints so the right decisions are made early. We explore layout options and feasibility to confirm what’s achievable before progressing further.
You get:
A clear understanding of what’s possible on your site
Early design direction aligned with your goals
Reduced risk of changes later in the process
PRE - DESIGN & CONCEPT
1.
Refine the design with confidence.
In this stage, your preferred concept is developed further into a coordinated layout that balances design intent with practicality. This phase bridges the gap between ideas and permit-ready documentation.
You get:
A design ready for pricing and costing
Improved cost certainty before documentation
A coordinated plan aligned with planning and building requirements
DESIGN DEVELOPMENT
2.
Build-ready documentation that reduces uncertainty.
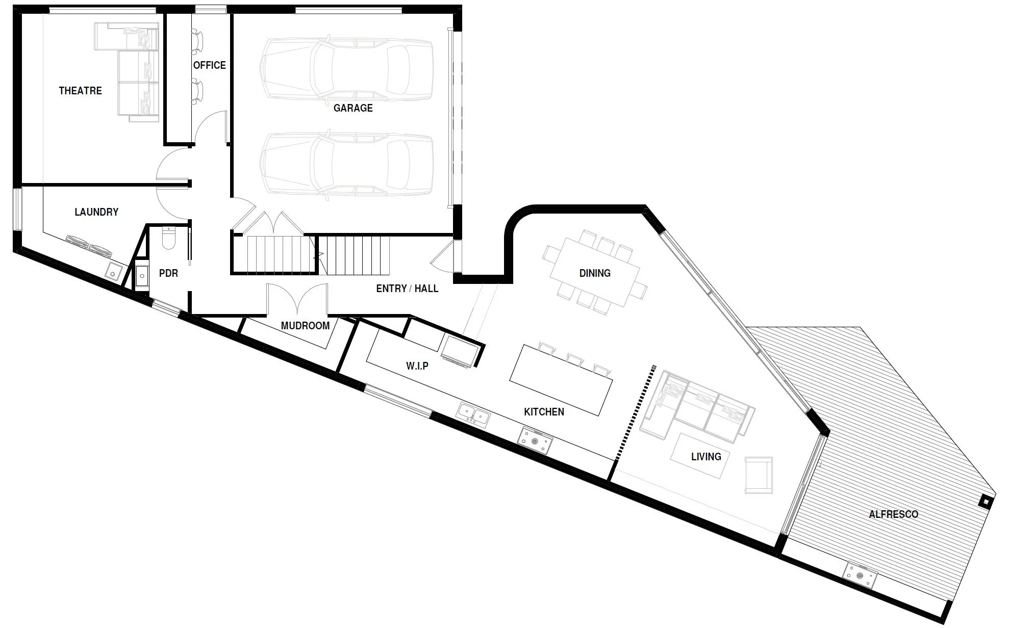
We prepare detailed technical drawings for building permit applications and construction. These documents are clear, coordinated, and practical — reducing questions on site, minimizing variations, and improving pricing accuracy.
You get:
Permit-ready documentation tailored to council requirements
Clear drawings contractors can price and build from
Fewer requests for information (RFIs) during construction
WORKING DRAWINGS
3.
Let’s Get Your Project Started
Request a personalised quote and design plan outline.
About me
Hi, I’m Woy — a registered building designer with 8+ years in architectural design and over 20 years in the broader construction industry. I work with homeowners, builders, and developers to create spaces that are functional, buildable, and visually engaging—whether it’s a new home, renovation, or multi-unit development.
My approach is practical, collaborative, and grounded in real-world knowledge. I listen carefully, ask the right questions, and deliver clear, buildable solutions—without unnecessary complexity.
If you’re after a designer who combines experience with creativity, let’s talk.